Pipe Calculation

 

This page is to help you determine what you need for a complete flue system.

 A complete flue system requires;

 
3" double wall flue pipes CB-3024-SS ( 22.5" of usable flue pipe, 1.5" loss )


An exit kit CB-6000-MR to exit the flue pipe ( 23" of usable flue pipe, 1" loss )

Enough 5" insulated pipe CB-5024-SS to insulate the 3" as it goes through the ceiling, roof and to outside.

Keep in mind that the exit kit comes with either a 24" section of 5" pipe or 2 x 12" 5" pipes. They do NOT come with any 3" pipe.

 The amount of pipe needed depends on the height the stove is installed, the distance needed to pass the highest point by one foot and the placement of the stove itself.

Please see below how to calculate the pipe for a flat, round and pitched roof.

The closer the pipe exits from the peak the less insulated pipe you will require.

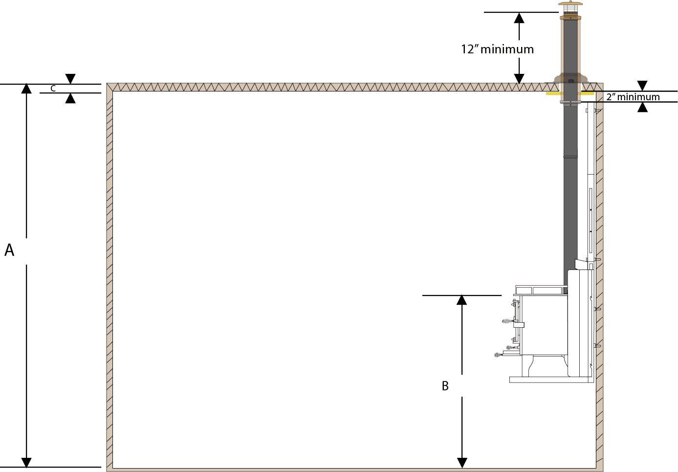
  • Van/Flat Roof

    Calculation Example

    3" Double Wall Flue Pipe
    1.  A - B + 12" = Total length of 3" double wall flue pipe in inches.
    2. Total length of 3" double wall flue pipe in inches divided by 22.5 = # of 24" long sections.
     5" Insulated Pipe
    1. 12" + 2" + C = Total length of 5" insulated pipe in inches.
    2. Total length of 5" insulated pipe in inches divided by 23" = # of 24" long sections

    ( 12" sections available as well)

  • Skoolie/Rounded Roof

    Calculation Example

    3" Double Wall Flue Pipe
    1.  A - B + 12" = Total length of 3" double wall flue pipe in inches.
    2. Total length of 3" double wall flue pipe in inches divided by 22.5 = # of 24" long sections.
     5" Insulated Pipe
    1. 12" + 2" + C = Total length of 5" insulated pipe in inches.
    2. Total length of 5" insulated pipe in inches divided by 23" = # of 24" long sections

    ( 12" sections available as well)

  • Pitched Roof

    Calculation Example

    3" Double Wall Flue Pipe
    1.  A - B + 12" = Total length of 3" double wall flue pipe in inches.
    2. Total length of 3" double wall flue pipe in inches divided by 22.5 = # of 24" long sections.
     5" Insulated Pipe
    1. 12" + 2" + C = Total length of 5" insulated pipe in inches.
    2. Total length of 5" insulated pipe in inches divided by 23" = # of 24" long sections

    ( 12" sections available as well)

Get in touch with us!



If you still need to contact us, the absolute best way is via email during our business hours.
Send your inquiry to cubicminiwoodstoves@gmail.com and we will get back to you quickly.

You can also try to reach us over the phone at 514-553-6682.

Just keep in mind that our phone line isn't always available, so it may take us a while to get back to you.
We always recommend sending an email instead as it will allow us to answer you in a much more timely fashion.

 

If you are calling from outside North America, please note that we regrettably are not able to return your call, so please email us if we do not answer the phone. 

 

All orders should be placed via our website. If this is not possible, please email us with your item list, full name, shipping/billing address, and phone number, and we will create your order for you.

 

***Quebec customers: please note that we are not set up for pickups or in-person purchases. All orders for Quebec must be submitted to us via email and will be shipped to you via Canada Post. Thank you for your understanding.

Address:

Cubic Mini Wood Stoves

3465 Griffith
Saint-Laurent, QC, Canada
H4T 1W5

Phone: 514-553-6682

Business hours:

 

Monday         7:00 AM - 3:00 PM EST

Tuesday         7:00 AM - 3:00 PM EST

Wednesday    7:00 AM - 3:00 PM EST

Thursday       7:00 AM - 3:00 PM EST

Friday            7:00 AM - 3:00 PM EST